20201117_161349 (Copy).jpg

Neubau eines Einfamilienhauses in Windehausen 2

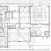
Eine neues Heim für eine junge Familie - Dieser Neubau wurde zusätzlich mit einer Doppelgarage geplant. Das Dachgeschoss bietet sich zudem zum Ausbau an. 

Leistungen: Gebäudeplanung, Tragwerksplanung, Bauleitung Rohbauarbeiten

Ausführungszeitraum: 2019-2020
Auftraggeber: Privat
Gesamtinvestition: 350.000 EUR