
Neubau Fußgängerbrücke Sundhausen
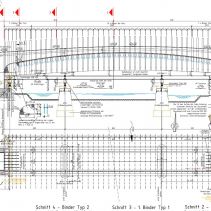
Die Fußgängerbrücke in Sundhausen wurde im Zuge von Hochwasserschutzmaßnahmen errichtet. Für unseren Auftraggeber fertigten wir hier die Werkplanung Tragwerksplanung, die Planung der Schalungsbinder sowie alle Schal- und Bewehrungspläne an.
Ausführungszeitraum: 2011
Auftraggeber: Bauunternehmen Henning GmbH
Gesamtinvestition: 200.000 EUR
Auftraggeber: Bauunternehmen Henning GmbH
Gesamtinvestition: 200.000 EUR
















zu Projekten | Startseite

